Godrej Golf Links Masterplan
- Location
- Greater Noida, Uttar Pradesh, India
- Client
- Godrej Properties Ltd
- Expertise
- Urban Design
- Landscape Architecture
- Completion
- 2024
- Size
- 100 Acres
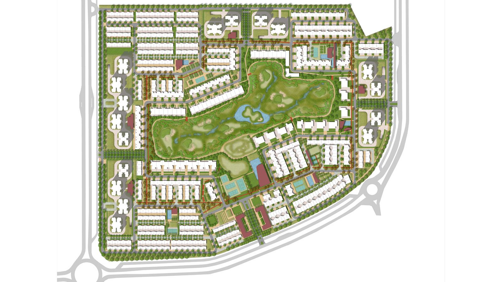
At the heart of this masterplan is a thoughtfully designed community golf course—not just for seasoned players but for everyone seeking an active and serene lifestyle. With multiple recreational spaces, the development fosters connections, well-being, and a true sense of belonging.

.jpg?u=2025-11-20T10:50:33.218Z&w=1280&q=90)


.jpg?u=2025-11-20T10:50:49.423Z&w=1280&q=90)
.jpg?u=2025-11-20T10:50:46.164Z&w=1280&q=90)
.jpg?u=2025-11-20T10:50:37.727Z&w=1024&q=90)

Golf estates are a fairly new phenomenon in India and usually tend to be exclusive, repetitive and offer a sterile living environment because they cater largely for only one (the high end) income group. What sets this one apart from others, is that the golf living experience is offered to a wider range of income groups. The more diverse population gives rise to a range of housing typologies with different amenities to cater for different needs.
The masterplan has been designed as a group of urban villages, where strong communities with a sense of belonging can develop. Villages are designed as distinct and self-sustainable neighbourhoods, each with its own indoor and outdoor amenities.
Apartments are arranged in four clusters on the western, northern or eastern edge of the development. They mark the gateway to the development but they also have excellent views of the community golf course and the golf courses of the adjacent developments.
Our contribution to this project through masterplanning and landscape design brings together elegance, functionality, and inclusivity to redefine golf estate living.
.jpg?u=2025-02-27T15:34:02.636Z&w=1536&q=90)

"Godrej Golf Links has been one of our most successful recent residential launches. The project owes its success to a very well thought out product strategy, positioning, differentiation and customer understanding - all resulting from a signature master plan thoughtfully integrating landscape, amenities and the streetscape".



